Skip to product information
frost cottage – 2 bedroom small modern house plan (780 sq. ft. cottage design)
1/2

frost cottage – 2 bedroom small modern house plan (780 sq. ft. cottage design)

$199.00

2 BEDROOMS / 1 BATHROOM – SMALL MODERN COTTAGE

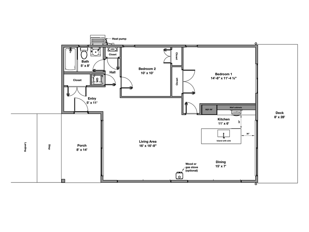
Modern cottage with open-plan living, 2 bedrooms, 1 bathroom, and 780 sq. ft. (72.5 m²) of interior space. Ideal for couples, small families, or vacation retreats. Features large windows, a covered porch, spacious deck, and a sloped roof for clean, modern curb appeal.

Options
WHAT'S INCLUDED
  • Full construction drawings — printable PDF house plans 24" × 36" (Arch D) / 610 × 914 mm
  • Mechanical, electrical, and plumbing layouts (MEP)
  • Detailed materials take-off: framing, insulation, windows, doors, hardware
  • kabn® guides for permitting and materials selection
PERMIT-READY

Code Basis: Designed to meet the International Residential Code (IRC) and the International Energy Conservation Code (IECC).

Acceptance: Approved in most U.S. jurisdictions; local site-specific engineering or energy calculations may be required

Verification: Please confirm requirements with your local building department

DELIVERY FORMAT

Download: Instant digital delivery after purchase

File Size: PDF 24" × 36" (Arch D) / 610 × 914 mm

Printing: Ready for local print shops (bond paper, black & white)

Organization: Files delivered in clear, structured folders

You may also like